44 V.P.O. EN RÉGIMEN DE ALQUILER EN LA PARCELA 10-2 CIERRO DEL ALISAL (SANTANDER)
El edificio consta de cuatro plantas y bajocubierta, más planta sótano dedicada a aparcamientos y trasteros. Viviendas muy luminosas con excelentes comunicaciones. Urbanización privada con zona ajardinada.
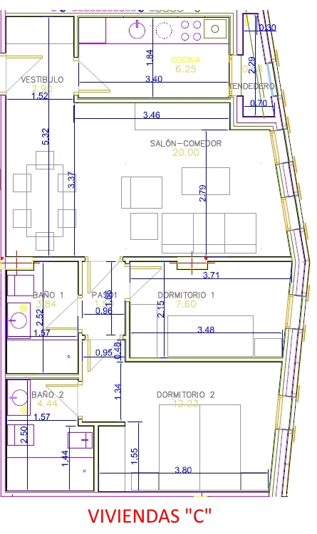
Todas las viviendas disponen de trastero y plaza de garaje en sótano con acceso directo por ascensor. A elegir entre diferentes tipologías: una, dos o tres habitaciones (la principal con armarios empotrados). Salón comedor. Uno o dos baños, cocina equipada con nevera combi, lavavajillas, lavadora, horno, vitrocerámica y campana extractora. Todas las viviendas con tendedero interior.
Instalación de calefacción individual de gas natural, telecomunicaciones con fibra óptica.
Tres ascensores (un montacargas para 15 personas, adaptado a discapacitados).
Todos los servicios en el entorno. A un paso de la salida a la autovía, Centro Comercial el Alisal, Complejo Municipal de Deportes y PCTCAN.
MEMORIA DE CALIDADES:
FACHADAS:
Formada por media asta de ladrillo macizo enfoscado interiormente con mortero hidrófugo, cámara con aislamiento térmico y tabicón de ladrillo de 70 interiormente. Terminación interior con proyectado de yeso.
Acabado exterior en fachadas sur y oeste, continúo con enfoscado de mortero de cemento hidrófugo y pintura de alta calidad especial para exteriores.
Acabado exterior en fachadas norte y este, continúo con enfoscado de mortero de cemento hidrófugo y terminación en fachada ventilada a base de tableros compactos de resinas termoendurecidas Trespa.
CUBIERTA:
Inclinadas con faldones y revestidos de zinc.
REPARTO INTERIOR:
Divisiones entre viviendas, formadas por doble tabique de 10 cm con aislante interior, revestida de yeso por ambas caras.
Divisiones dentro de la vivienda con fabrica de ladrillo gran formato de 70mm, revestido de yeso por ambas caras.
AISLAMIENTOS:
Planchas de poliestireno estruido en cámaras de fachada y cubierta.
SOLADOS:
Solado cerámico en toda la vivienda.
CARPINTERIA EXTERIOR:
Carpintería de aluminio con rotura de puente térmico, acabado anodizado natural. Persiana de aluminio. Vidrio 4mm/cámara de 10mm/4mm.
Persianas correderas de aluminio y contraventas de Trexpa para exteriores.
Las ventanas estarán homologadas en clasificación de estanqueidad y resistencia al viento 4A9C4.
CARPINTERIA INTERIOR:
Puerta de entrada a vivienda, maciza, blindada (doble chapa), de 45mm revestido por ambas caras de haya, cerradura embutida de seguridad, mirilla óptica y pomo.
Puerta interior ciega, hoja lisa por ambas caras de 35mm., revestida por ambas caras en haya, herrajes en inoxidable.
FONTANERIA Y APARATOS SANITARIOS:
Tuberías de distribución de instalación de fontanería para las redes de agua fría y caliente en tubería de polietileno reticulado forrada con aislamiento tipo tubolit, red de desagües en tubería de PVC.
Aparatos sanitarios mod. Connect de Ideal Standard, color blanco.
Grifería mezclador mod. Klip de Genebre.
CALEFACCION Y AGUA CALIENTE:
Instalación de calefacción individual. Caldera mural marca ROCA mod. NEOBIT 24/24 F de circuito estanco con kit de evacuación para doble flujo. Potencia 20.000Kcal/h. Elementos de radiador de aluminio de marca ROCA.
Instalación bitubular, en tubería multicapa, forrada con aislamiento tubolit, con llave de vaciado. Termostato de ambiente.
Instalación de distribución a vivienda para gas con un punto de suministro a caldera, construida según normas de la compañía suministradora.
ELECTRICIDAD Y TELECOMUNICACIONES:
Instalación según Reglamento Electrotécnico para baja tensión.
Instalación de portero automático.
Instalación para telecomunicaciones en vivienda con tomas para telefonía, televisión y canalización para red de cable, según Reglamento de Telecomunicaciones.
ZONAS COMUNES:
Portal.
2 ascensores (mod. Schindler 3300, 6 personas, 535Kgs. carga) y 1 Montacargas (mod Schindler 3300, 13 personas, 1.125Kgs carga), eléctricos sin cuarto de máquinas, puertas telescópicas, camarín revestido por paneles de chapa pintada con protecciones paragolpes, iluminación indirecta y de emergencia. Paradas en todas las plantas, incluida bajada a sótanos. Control centralizado y comunicación bidireccional en cabina.
Recinto totalmente vallado y cerrado.
GARAJES:
Totalmente equipado con protección contra incendios y detección con extracción de monóxido de carbono. Apertura automática de puerta.

































