- Promotor: Gobierno de Cantabria
- Plazo de ejecución: 5 meses.
- Presupuesto (sin IVA): 574.941,34 euros.
- Año de terminación: 2018
- Superficie en m2: 672,82 m2
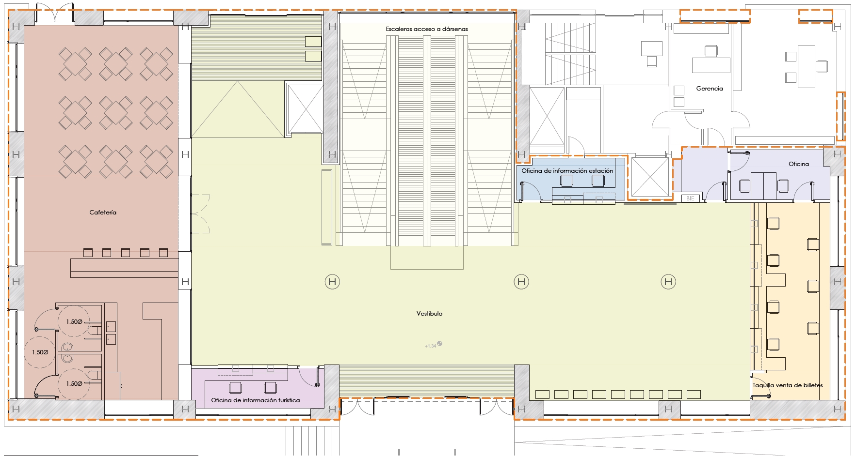
DESCRIPCIÓN DEL PROYECTO
- Las obras consisten en la reforma del interior del vestíbulo de acceso a la Estación de Autobuses.
- Carpintería exterior: Se renueva la carpintería exterior del inmueble adaptada a la modulación de los huecos de los ventanales existentes en fachada. La carpintería se proyecta en aluminio anodizado color inox mate, con marco de 55 mm con perfilería modular con rotura de puente térmico formada por perfil de poliamida en marco y hoja, y con doble acristalamiento con cámara de aire interior.
- La carpintería exterior no accesible se proyecta con vidrio aislante con una luna de seguridad en el interior (4+4 Extra Clear), cámara de aire 16 mm y luna exterior también con vidrio laminado de seguridad 4+4 Extra Selective SNX 60/28 factor solar 28%.
- El acristalamiento de las puertas de acceso automáticas llevará vidrio laminado de seguridad de 5+5. Batería de apertura de emergencia, sistema de rodadura anti aplastamiento incorporado y sensor de proximidad
- Mamparas divisorias interiores: Las mamparas de las divisorias interiores se proyectan con vidrio laminado de seguridad 10+10 mm con dos láminas de butiral de polivinilo incoloro. Los vidrios de frente de taquillas y oficinas serán también del tipo laminado de seguridad 10+10 mm con dos láminas de butiral de polivinilo incoloro con perforaciones para la comunicación acústica entre los dos lados
- Particiones interiores: La particiones correspondientes a cerramientos de sectorización de incendios y delimitación de espacios con usos diferentes se proyectan con tabiquería húmeda y formada como mínimo por paredes de fábrica de ladrillo cerámico perforado, recibido con mortero de cemento de 12 cm de espesor acabado con un enlucido de yeso por ambas caras. Los trasdosados, tabiques de reparto y demás particiones interiores se proyectan con tabiquería en seco, mediante tabique autoportante de placas de yeso laminado.
- Puertas interiores: Las puertas interiores se proyectan todas con medidas de 90 x 210 cm de paso libre y de 40 mm de grosor formada por bastidor/marco perimetral de roble macizo o similar acabado en las 4 caras canteado con lámina de PVC de 2 mm. Dos caras de tablero DM hidrófugo de 8 mm acabado con laminado estratificado de alta presión de 2 mm de espesor de fórmica o similar y alma interior de manta de lana mineral.
- Revestimiento interior:
- Paredes: Los trasdosados y tabiques interiores se revestirán con un aplacado formado por tablero compacto de resinas fenólicas de 8 mm de grosor. Los aseos y locales de instalaciones se revestirán con alicatado de baldosa de cerámica esmaltada mate de color amarillo, de 20x20 cm.
- Techos: En el vestíbulo se proyecta un revestimiento del techo formado por listones de 30 x 120 mm realizado con tablero compacto de resinas fenólicas de 8 mm de grosor.
- En el resto se proyecta falso techo formado por placas de fibras minerales fono absorbente de 60x60 cm, con entramado visto suspendido de los forjados.
- Pavimentos: En el interior del vestíbulo se proyecta pavimento de losas de granito nacional modelo azul platino, pulido y abrillantado de 120 x 60 cm y 3 cm de grosor. En zonas de cafetería, baños y zonas de servicios se proyecta pavimento de vinilo heterogéneo compacto.
- Extracción: Para extracción de humos de la cafetería se proyecta estructura tubular metálica con perfil hueco cuadrado de acero galvanizado. La extracción-ventilación de aseos se proyecta mediante conducto de acero galvanizado de 100 mm de diámetro conectado a extractores eléctricos y embocados hacia el exterior
- Instalaciones:
- Instalación de fontanería de abastecimiento de agua para la zona de aseos, cocina y cafetería desde la acometida existente.
- Instalación de saneamiento para la nueva zona de baños y cafetería directamente conectada a la instalación existente.
- Se proyectan controles automáticos para la regulación de los horarios de funcionamiento de cada zona en función de la temperatura óptima y el grado de ocupación en cada local.
- En la zona de cafetería se proyecta una instalación de aire acondicionado de dos unidades 1x1 con bomba de calor compuesto por unidad exterior y unidad interior tipo casette.
- En la zona de taquillas se resuelve mediante una instalación de aire acondicionado 4x1 con bomba de calor formado por unidad exterior y cuatro unidades interiores del tipo Split.
- Se proyecta una solución de mejora e incorporación de los servicios de comunicaciones de datos, telefonía, internet / WI-FI, información y vigilancia en el sistema ya existente.



